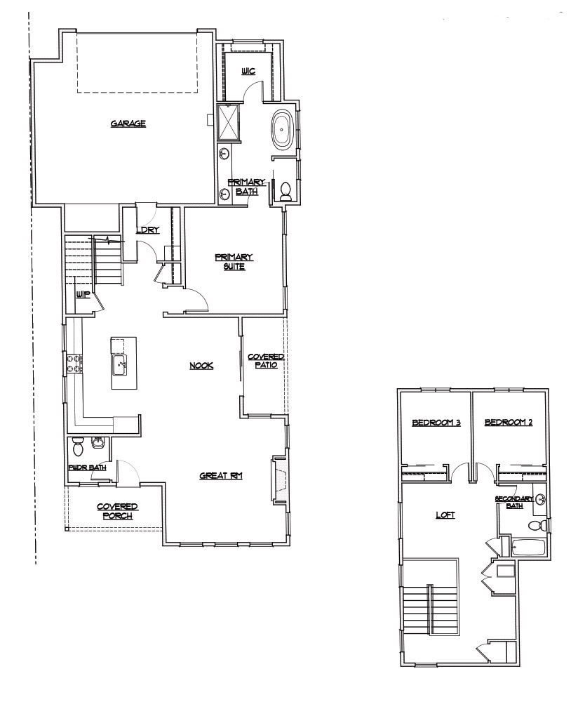
• MLS# 220206963
  • 2062 Sq. Ft.
  • 3 Beds
  • 2.5 Baths
  • 2 Cars
  • Master on Main

Collier - The Aspen, Lot 72

1332 NW Ochoa, Bend, OR 97703 (directions)

Deal ID: 17818856477

DOWNLOAD FLOORPLAN

SIMILAR FINDS FEATURED NEW HOMES