$925,000
Move-In Ready
  • MLS# 220197676
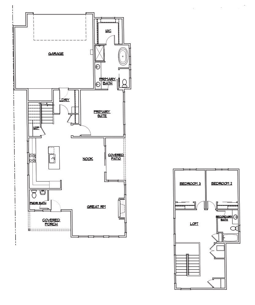
  • 2062 Sq. Ft.
  • 3 Beds
  • 2.5 Baths
  • 2 Cars
  • Master on Main

Collier - The Aspen, Lot 71

1336 NW Ochoa, Bend, OR 97703 (directions)

Deal ID: 17816402969

DOWNLOAD FLOORPLAN

SIMILAR FINDS FEATURED NEW HOMES